• 草莓视频久久免费下载,草莓视频黄版,成人黄色草莓视频,草莓视频APP在线观看下载

    手机banner

    产品分类

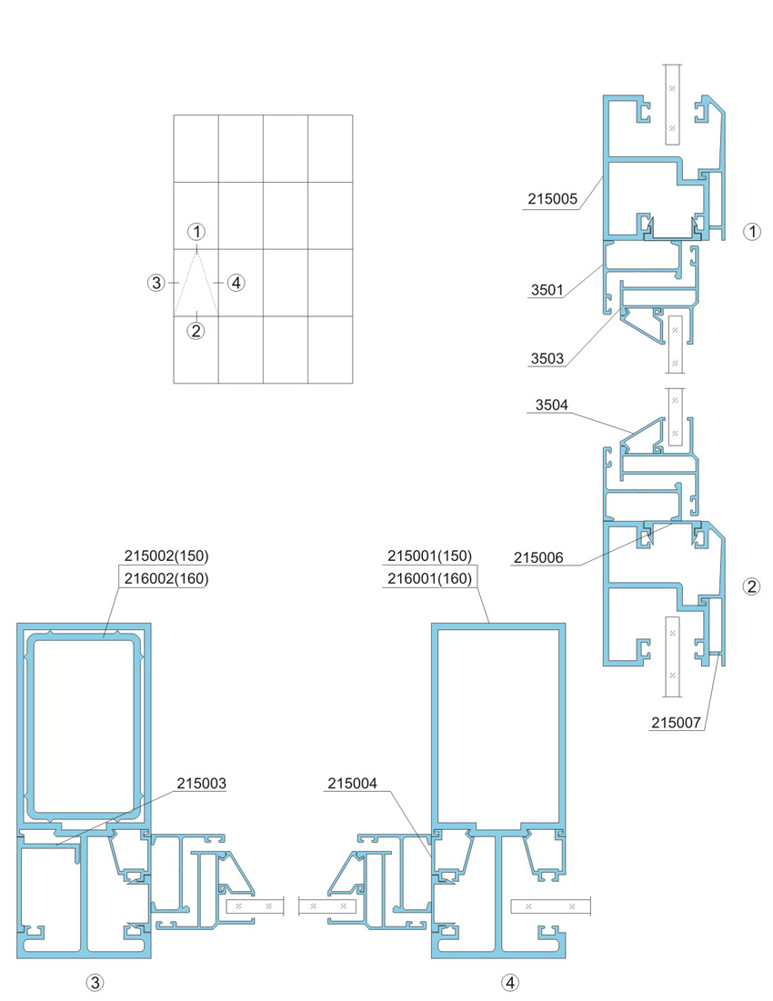
    150、160系列明框玻璃幕墙

    150、160系列明框玻璃幕墙

    • 详细介绍

    明框玻璃幕墙.jpg



    明框玻璃幕墙是金属框架构件显露在外表面的玻璃幕墙。它以特殊断面的铝合金型材为框架,玻璃面板全嵌入型材的凹槽内。其特点在于铝合金型材本身兼有骨架结构和固定玻璃的双重作用。明框玻璃幕墙是传统的形式,被普遍应用,工作性能可靠。

    现代化高层建筑的玻璃幕墙采用了由镜面玻璃与普通玻璃组合,隔层充入干燥空气或惰性气体的中空玻璃。中空玻璃有两层和三层之分,两层中空玻璃由两层玻璃加密封框架,形成一个夹层空间;三层玻璃则是由三层玻璃构成两个夹层空间。中空玻璃具有隔音、隔热、防结霜、防潮、抗风压强度大等优点。据测量,当室外温度为-10℃时,单层玻璃窗前的温度为-2℃,而使用三层中空玻璃的室内温度为13℃。而在炎热夏天,双层中空玻璃可以挡住90%的太阳辐射热。阳光依然可以透过玻璃幕墙,但晒在身上大多不会感到炎热。使用中空玻璃幕墙的房间可以做到冬暖夏凉,有效地改善了生活环境。

    本文网址: http://www.tjhaizhong.com/product/663.html

    关键词: 玻璃幕墙厂家,明框玻璃幕墙,玻璃幕墙

    在线客服
    二维码

    扫描二维码

    分享 一键分享
    网站地图